Visão Geral
Situada em Beiriz, Póvoa de Varzim, na luxuosa zona do Castanhal, esta moradia multifamiliar oferece uma localização privilegiada, combinando proximidade ao centro e à praia com tranquilidade.
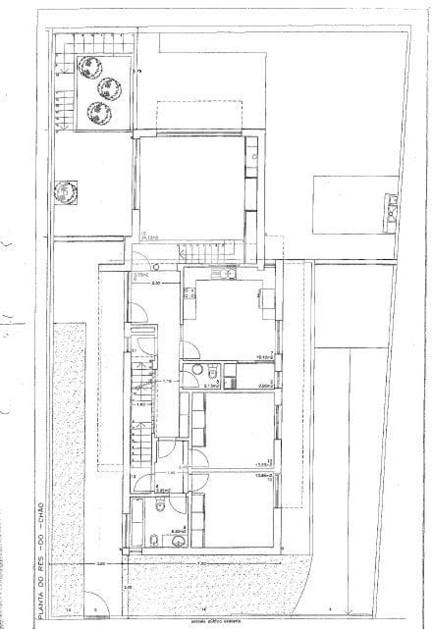
A casa tem três pisos: na cave, há uma garagem transformada em salão, piscina interior, ginásio, churrasqueira, terraço e jardim. No rés-do-chão, a sala de estar envidraçada com terraço, cozinha equipada com acesso a outro terraço, lavandaria, casa de banho de serviço, dois quartos com roupeiros embutidos e uma casa de banho de apoio. No último piso, uma master suite com varanda e um closet fantástico.
Esta moradia é a síntese perfeita de luxo, conforto e localização, venha conhecê-la!
- Status Em construção
- LocalizaçãoPóvoa de Varzim
- TipoMoradia
- Preço750.000€
Características
Quartos
3
Casas de Banho
3
Garagem
Sim
Piscina
Sim
Classificação energética
A
Área Útil
162.75 m2
Preço por m2
4608.29 €
- Terraço
- Mobilado
- Lavandaria
- Entrada de Automóveis
- Cave
- Arrecadação Despensa
- Sistema de vídeo porteiro
- Alarme de Segurança
- Vidros Duplos
- Portão de garagem elétrico
- Despensa
- Localização tranquila
- Ginásio
- Espaço de estacionamento
- Aquecimento solar
- Barbecue
- Vistas panorâmicas
- Água da rede
- Varanda
Localização
FICOU COM DÚVIDAS?
NÓS AJUDAMOS
Quer saber mais?
Descarregue aqui a brochura deste imóvel.
Ler mais
Situada em Beiriz, uma encantadora freguesia da Póvoa de Varzim, esta moradia multifamiliar oferece uma localização excecional, combinando a proximidade ao centro da cidade e à praia com a tranquilidade e calma únicas desta zona. Em particular, está localizada na zona do Castanhal, conhecida por ser a mais luxuosa de Beiriz, proporcionando um ambiente de sofisticação e exclusividade.
A moradia é composta por três pisos, cada um cuidadosamente projetado para maximizar o conforto e a funcionalidade. Na cave, encontramos uma garagem transformada em salão para convívios, um ginásio e ainda uma fantástica piscina interior com acesso ao jardim. Este espaço é ideal para atividades de lazer e bem-estar, complementado por uma churrasqueira e um terraço, perfeitos para momentos ao ar livre e confraternizações.
No rés-do-chão, a sala de estar destaca-se pela sua ampla área envidraçada que permite a entrada abundante de luz natural, orientada a sul, criando um ambiente acolhedor e bem luminoso. Ao lado da sala, encontra-se mais um terraço com ligação ao piso inferior onde se pode desfrutar de espetaculares pores-do-sol. A cozinha, excecionalmente bem dimensionada e totalmente equipada, também possui acesso a um terraço fantástico, proporcionando um espaço adicional para refeições ao ar livre. Além disso, este piso inclui uma lavandaria totalmente equipada e uma casa de banho de serviço. Adicionalmente, existem dois quartos equipados com roupeiros embutidos, acesso à varanda, o que lhes proporciona uma luz natura extraordinária e apoiados por uma casa de banho, garantindo o máximo conforto e praticidade.
No último piso, encontramos a master suite, um espaço simplesmente fenomenal com uma exposição solar privilegiada e uma varanda. Esta master suite possui um closet fantástico também com acesso a um terraço, que confere um ambiente luxuoso a esta divisão.
Esta moradia em Beiriz é, sem dúvida, a combinação perfeita de luxo, conforto e localização privilegiada, oferecendo um estilo de vida incomparável numa das áreas mais desejadas da Póvoa de Varzim. Não deixe escapar esta oportunidade!